產品詳情
定壓補水穩壓罐 嘉興變頻供水罐 不銹鋼儲蓄罐

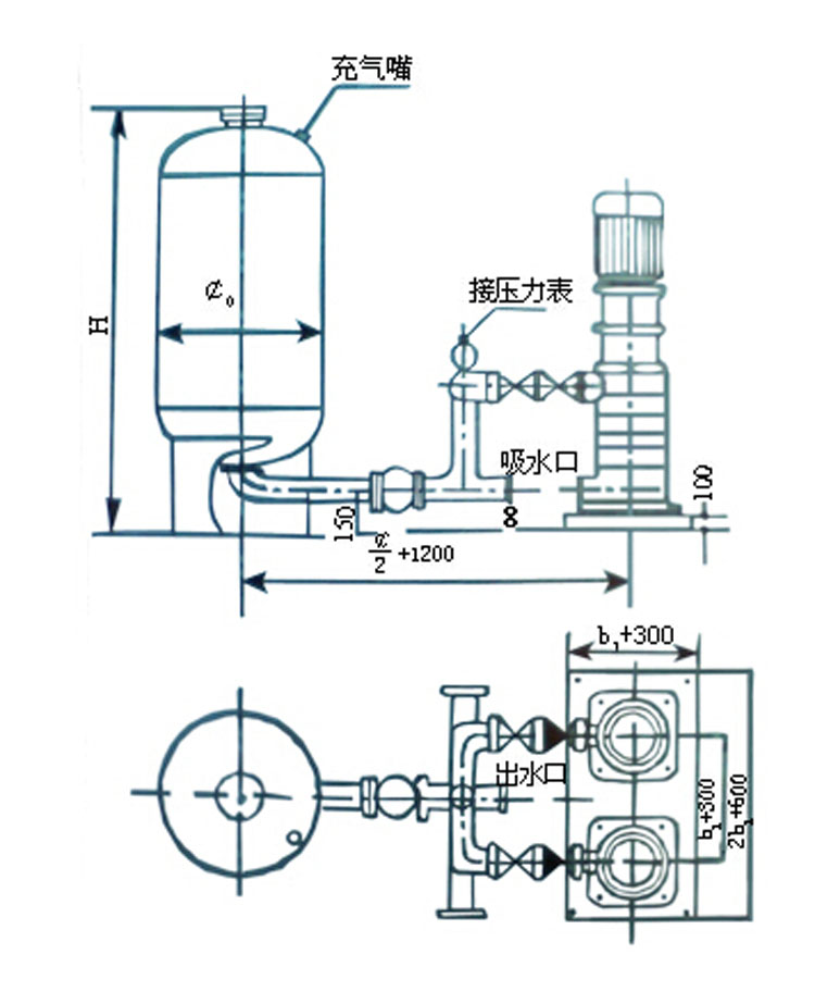
工作原理
當氣壓水罐經過安裝驗收后,就可以對電接點壓力表上限P2,下限P1壓力數值進行整定,然后開始向氣壓水罐進行充水和充氣,上述工作完成后,便可接通電源開始供水。
啟動水泵,向建筑管網和氣壓水罐水室內充水,由于水是不可壓縮液體,隨著水量的不斷增加,水室的體積也不斷擴大,囊形隔膜不斷向外擴張而積壓氣室,使其體積不斷縮小,管內的壓力也不斷增高,當達到設計高壓力P2時,電接點壓力表指針碰到觸點,水泵則自動停泵。在水泵自動停止運轉的時間里,由于氣室被積壓的氮氣具有膨脹力,積壓囊形隔膜,使水室及管網的水具有一定的壓力,保證正常供給用戶用水。這樣水室體積不斷縮小,囊形隔膜不斷收縮,當水室的水幾乎用完時,罐內壓力也降到設計壓力P1,此時,電接點壓力表指針碰到設計低壓力觸點,水泵則自動開啟,使水又沖入管網及水室。如此重復上述過程,保證給水系統的用水。以上的運轉過程是由電接點壓力表通過電氣控制箱控制水泵啟停而得以實現的。給水裝置中有兩臺水泵,一臺運轉,一臺備用,如運轉水泵發生故障,電器控制箱可使水泵自動切換。運轉泵自動停泵,備用泵自動啟動,轉入正常運轉。

產品特性
(1) 一次充氣可保持長久使用;用戶不需另外設置充氣設備
(2) 罐體為密閉裝置,罐體與水不接觸,保證水質不受外界污染;
(3) 占地面積少、安裝快、投資省、作維修方便;
(4) 可取代生活消防及采曖,空調用的高位水箱及水塔,有利于建筑美觀和結構抗震,減少建筑的造價;
(5) 能自動減少管網中的水錘及噪音;
(6) 在熱水采暖及空調系統中起膨脹水箱作用和自動補水作用;
(7) 自動控制使用方便、運行可靠






調試注意事項
1定壓罐運到現場安裝完閉后,需要把定壓罐上、下盲板螺絲再緊固一次,由于長途運輸可能導致螺絲松動,防止設備部分漏水,漏氣,保證設備的正常運行。
2 電接點壓力表的設置,上限不能超過水泵揚程,下限要比需要定壓的系統運行所需的低壓力高一點,保證設備在壓力不足時正常運行。
3 要把電接點壓力表與表彎管之間的旋塞調小,使水壓緩緩進入壓力表,不于因為水壓的突升損壞壓力表內的游絲。
4 往軟化水箱內加滿水,打開水泵進水口閥門,把水泵放氣閥打開,放出水泵內的空氣,放出水后把放氣閥關閉。接通電源,起動控制箱上手動開關,看電機轉向是否正確,把定壓罐進水閥門及本系統與需要定壓的系統之間閥門關閉。將電接點壓力表上下限調好,電控箱轉換開關打到自動位置,此時水泵開始運轉,將定壓罐頂部放氣閥打開,然后把定壓罐進水口閥門打開三分之一(防止水進入速度過快而損壞內部),此時水緩緩進入定壓罐,等頂部放氣閥放出水后,將放氣閥關閉,然后把定壓罐進水口閥門全部打開,此時電接點壓力表壓力上升,等壓力達到上限設定值后,壓力表發出信號傳送給控制箱,控制箱發出信號使水泵停止運轉。
5 系統調好后打開與需要定壓的系統之間的閥門,這樣本設備就可以正常起到定壓補水的作用.
6定壓罐出廠時已充氮氣,不需要再充。設備運行一段時期后,發現罐內需要充氣,應嚴格按下述作程序進行:
①氣壓水罐的調試程序,應本著先充水后充氮的原則進行。充水時可利用城市給水系統充水。充水時將排氣閥打開,當水室空氣排凈后停止充水,關閉排氣閥開始充氣。
②充氣前將電接點壓力表上、下指針轉需要的高壓力和低壓力位置上,然后打開充氣嘴進行充氣,當氣室的充氣壓力達到高壓力P2值時,充氣完畢,關閉充氣嘴。
安裝要求及維護
(1) 用水泥打好基礎,灌注地腳螺栓,用水平儀校正,安裝要牢固平穩。
(2) 工作環境應通風良好,溫度5~400C,相對濕度≤90%,電源電壓波動≤10%
(3) 投入運行前要仔細檢查水泵、儀表、閥門等性能,合格后在打開補水閘閥,與供熱系統聯網運行。
(4) 應經常檢查設備運行情況及系統的密封性,防止漏水銹蝕。
(5) 機組調試正常投入運轉后,管理人員不宜亂動,如需充氣時可通知本公司到用戶處充氣。
調試指導:
若調試人員調試時,發現罐內需要充氣,應嚴格按下述作程序進行:
①氣壓水罐的調試程序,應本著先充水后充氮的原則進行。充水時可利用城市給水系統充水。充水時將排氣閥打開,當水室空氣排凈后停止充水,關閉排氣閥開始充氣。
②充氣前將電接點壓力表上、下指針轉需要的高壓力和低壓力位置上,然后打開充氣嘴進行充氣,當氣室的充氣壓力達到高壓力P2值時,充氣完畢,關閉充氣嘴。sldgle






